1082 Budapest VIII. kerület , Bláthy Ottó u. 9.

Bláthy kisház

Iroda bérlet díj

10-10€/m2/hó+Áfa

Üzemeltetési költség

2,25 €/m2/hó + Áfa

Jelenleg kiadó iroda

105 m2

Min. bérbeadható iroda

105 m2

Közös területi arány

0-0%

Irodaterület összesen

105 m2
  • Értékesítés típusa Kiadó
  • Kategória
  • Hirdetéskód 9208486

Az iroda leírása

VIII. kerület, Tisztviselőtelep – önálló irodaépület hosszú távra kiadó
Budapest VIII. kerületének patinás, családi házas részén, a Bláthy Ottó utcában hosszú távra kiadó egy önálló, irodának kialakított épület. Az ingatlan egy rendezett telken található, ahol egy másik ház és egy gondozott kert is található.
Főbb jellemzők
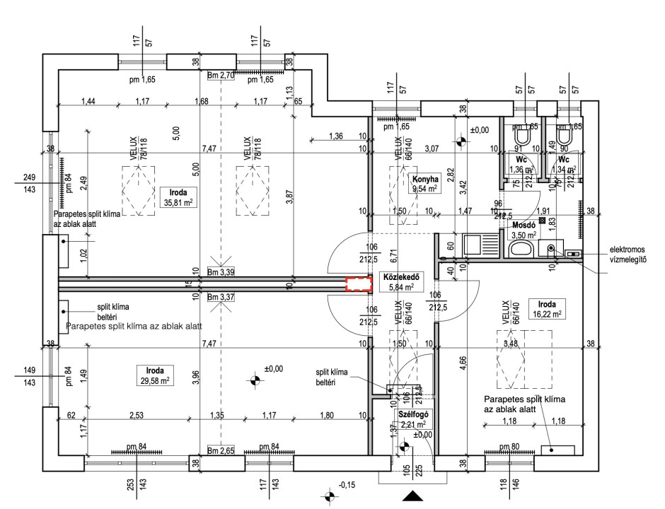
• Hasznos alapterület: 105,4 m²
• Helyiségek: 3 irodahelyiség, konyha, szélfogó, közlekedő, mosdó, 2 mellékhelyiség
• Bútorozottság: íróasztalokkal és szekrényekkel felszerelt (irodai székek nélkül)
• Állapot: frissen festett helyiségek
• Konyha: mikró, hűtőszekrény, mosogatógép
• Fűtés-hűtés: korszerű, padlón álló klímákkal megoldva
Biztonság és infrastruktúra
• Riasztórendszer távfelügyeleti bekötési lehetőséggel
• Udvari kamerarendszer, videó kaputelefon, önálló kapucsengő, kártyás beléptető
• Internet előfizetés lehetősége a Telekom optikai hálózatán
Közlekedés és parkolás
• Kiváló megközelíthetőség: metró, villamos, busz – a Népliget pár perc sétára
• Utcai parkolás (300 Ft/óra), valamint bérelhető parkolóhelyek a közeli irodaházakban
Használati feltételek
• Kizárólag irodai tevékenység folytatható
• Tömeges ügyfélszolgálat, kereskedelmi ügyfélforgalom és raktározás nem megengedett
Bérleti konstrukció
Bérleti konstrukció
• Havi bérleti díj: 1.054 EUR (~390.000 Ft) – 10 EUR/m² (~3.900 Ft/m²)
• Havi üzemeltetési díj: 237 EUR (~92.500 Ft) – 2,25 EUR/m² (~880 Ft/m²) - tartalmazza: közös terek és kert karbantartását, biztonsági rendszerek üzemeltetését, kapcsolattartást szolgáltatókkal és szervizekkel
• Rezsi: pontos elszámolás almérők alapján (áram és víz)
• Kaució: 3 havi bérleti díj
Csendes, elegáns környék – modern infrastruktúrával és kiváló közlekedéssel. Ez az ingatlan ideális választás olyan cégeknek, akik hangulatos, biztonságos és jól megközelíthető irodát keresnek hosszú távra.

Szintek, kiadó irodahelyiségek

Elhelyezkedés Terület Ebből kiadó Bérleti díj
Földszint 105 m2 105 m2 10 €/m2/hó + ÁFA
Megjegyzés:
egyszintes a ház

Térkép

A hirdetők elérhetősége
...
Internet Szolgáltatók Tanácsa
+36 01 999 5707